Устройство парового котла
Конструкцию ПК упрощенно можно представит, в виде емкости, где вода преобразовывается в пар. Она изготовлена из труб разного диаметра. Кроме трубной системы ПК имеет топочное пространство, в которой сжигают природное топливо.
Устройство парового котла и его конструктивные особенности, определяются видом топлива. Например, угольные топки оборудованы колосниками, на которых размещен горящий топливный слой, через них в топку поступает кислород.
Вверху топки установлен дымоход, создающий тягу в парогазовом тракте агрегата, чем поддерживается нормальный режим. Паровые котлы на газе имеют газовую или мазутную горелки.
Горячие уходящие газы, получаемые в процессе горения топлива, нагреваю воду до кипения, после этого с зеркала испарения начинает выделяться пар, поступающий потребителю, а дымовые газы через трубу уходят в атмосферу.
Главные конструкционные элементы паровых котельных связываются в одну целостную котловую систему с помощью гарнитуры, арматуры, циркуляционных насосов, КИПиА дымососов и вентиляторов.
Характеристика барабанных котлов
Тепло передаётся носителю от сжигаемого топлива, приводящего к его закипанию. Образуемая, таким образом, пароводяная смесь перенаправляется в барабан, где и осуществляется разделение носителя и генерируемого продукта. Благодаря такому принципу работы барабанные котлы обеспечивают высокий уровень производительности, а их КПД достигает 90%.
Если котел находится в ручном управлении, это обычно является следствием отсутствия у оператора внимания. Другими возможными причинами являются сбой в питающем насосе, протечки системы подачи, неисправный обратный клапан, дефекты в автоматических системах и аварийные сигналы с низким уровнем воды и многие другие дефекты, которые, если их не обнаружить и скорректировать, могут привести к низкой уровня в котле. Когда уровень воды достаточно низкий, чтобы обнаружить части трубок генератора, погруженная поверхность уменьшается, и если в других условиях нет изменений, давление будет падать.
Рис. 1
Характерной особенностью котлов, оборудованных барабанами, считается возможность получения низкотемпературного пара, благодаря чему холодный запуск агрегата существенно упрощается. Требования, относящиеся к качеству используемой воды умеренные, ведь есть возможность выведения солей посредством непрерывной продувки. Котлы с барабанами имеют повышенную аккумулирующую способность, благодаря чему исключаются резкие изменения нагрузки, в процессе частотной регуляции сети.
Обычно падение давления пара обусловлено более высоким потреблением, и естественная тенденция состоит в том, чтобы попытаться уравновесить давление, осветив больше горелок или увеличив огонь тех, которые уже включены. Это верно, если падение давления было вызвано увеличением потребления пара. Если, однако, падение давления было связано с низким уровнем воды, ускорение сгорания приведет к серьезному повреждению материала. Когда происходит падение давления, причина для которого не является строго известной.
Проверьте уровень воды перед тем, как увеличить факел или увеличить давление масла. Если котел имеет низкую воду, тепло от печи, действующей на сухие трубы, вызовет следующее: искажение обсадной колонны, разрушение огнеупоров, серьезная утечка воды и пара, разрушение труб.
Есть несколько аспектов в устройстве барабанных котлов, требующих модернизации:
- толстые стенки барабана — существенно ослаблены множеством отверстий, наличие которых обусловлено потребностями трубной системы. Указанный аспект, приводит к возникновению избыточных температурных напряжений, способных стать причиной возникновения трещин;
- ограниченная скорость пуска – избежать термических трещин, можно только существенно снизив скорость пуска;
- ограниченный диапазон рабочего давления – агрегаты с естественной циркуляцией, могут работать с давлением не выше 17-18Мпа. Если пренебречь указанным аспектом, то вода не сможет естественно циркулировать в котельном экране.
Автоматизация процессов код
Котлоагрегат представляет технически сложное устройство. Как многомерный объект он содержит в себе множество систем регулирования. Множество технологических параметров необходимо поддерживать для надежной и экономичной работы котла. Такими основными параметрами являются:
- Система тепловой нагрузки котлоагрегата:
- процесс горения в топке;
- подачу воздуха в топку котла;
- разрежение в топке;
- Система регулирования температуры перегретого пара;
- Система регулирования питания котлоагрегата.
Система регулирования питания котлоагрегата | код
Регулирование питания паровых котлов осуществляется следующими образом. Принято, что максимально допустимые отклонения уровня воды барабане ±100 мм от среднего значения. Снижение уровня может привести к нарушениям питания и охлаждения водоподъемных труб. Повышения уровня может привести к снижению эффективности внутрибарабанных устройств. Перепитка барабана и заброс частиц воды в турбину может явиться причиной тяжелых механических повреждений ее ротора и лопаток.
Трёхимпульсная САР питания водой барабанного парогенератора
Схемы регулирования. Исходя из требований к регулированию уровня воды в барабане, автоматический регулятор должен обеспечить постоянство среднего уровня независимо от нагрузки котла и других возмущающих воздействий.В переходных режимах изменение уровня может происходить довольно быстро, поэтому регулятор питания для обеспечения малых отклонений уровня должен поддержать постоянство соотношения расходов питательной воды и пара. Эту задачу выполняет трёхимпульсный регулятор.
Регулятор перемещает клапан при появлении сигнала дисбаланса между расходами питательной воды Дпв и пара Дпп. Кроме того, он воздействует на положение питательного клапана при отклонениях уровня от заданного значения. Такая САР питания, совмещающая принципы регулирования по отклонению и возмущению, получила наибольшее распространение на мощных барабанных котлах.
Регулирование водного режима котлоагрегата | код
Регулирование водного режима барабанного парового котла
Химический состав воды, циркулирующей в барабанных котлах, оказывает существенное влияние на длительность их безостановочной и безремонтной компаний. К основным показателям качества котловой воды относятся общее солесодержание и избыток концентрации фосфатов. Поддержание общего солесодержания котловой воды в пределах нормы осуществляется с помощью непрерывной и периодической продувок из барабана в специальные расширители. Потери котловой воды с продувкой выполняются питательной водой в количестве, определяемом уровнем воды в барабане. Регулирование непрерывной продувки осуществляется путем воздействия регулятора на регулирующий клапан на линии продувки. Помимо корректирующего сигнала по солесодержанию, на вход ПИ- регулятор 2 поступает сигнал по расходу продувочной воды Дпр и сигнал по расходу пара Дпп. Сигнал по расходу пара поступает на расходомер 3, электромеханический интегратор которого используется в качестве импульсатора, воздействующего через пусковое устройство 4 на включение и отключение плунжерного фосфатного насоса 6.
Для каких целей нужен пар
Знание того, где используется паровой котел и с какими режимами, позволяет эффективно выбрать оборудование.
ПК применяются в таких отраслях:
- ЖКХ в центральном отоплении устанавливают модификации ПК низкого или среднего давления для парового отопления. Теплоноситель поступает либо непосредственно в сеть, либо через теплообменные аппараты подготавливает воду для центрального отопления и ГВС.
- Промышленность применяет более мощные парогенераторы, вырабатывающие перегретый пар с повышенной теплоотдачей.
- Энергетика, паровые котлы высокого давления участвуют в схемах генерации электроэнергии, передавая пар турбине.
- Промышленность, ПК обеспечивают механическое движение производственных аппаратов.
- Железнодорожный транспорт, ПК установлены на тепловозах.
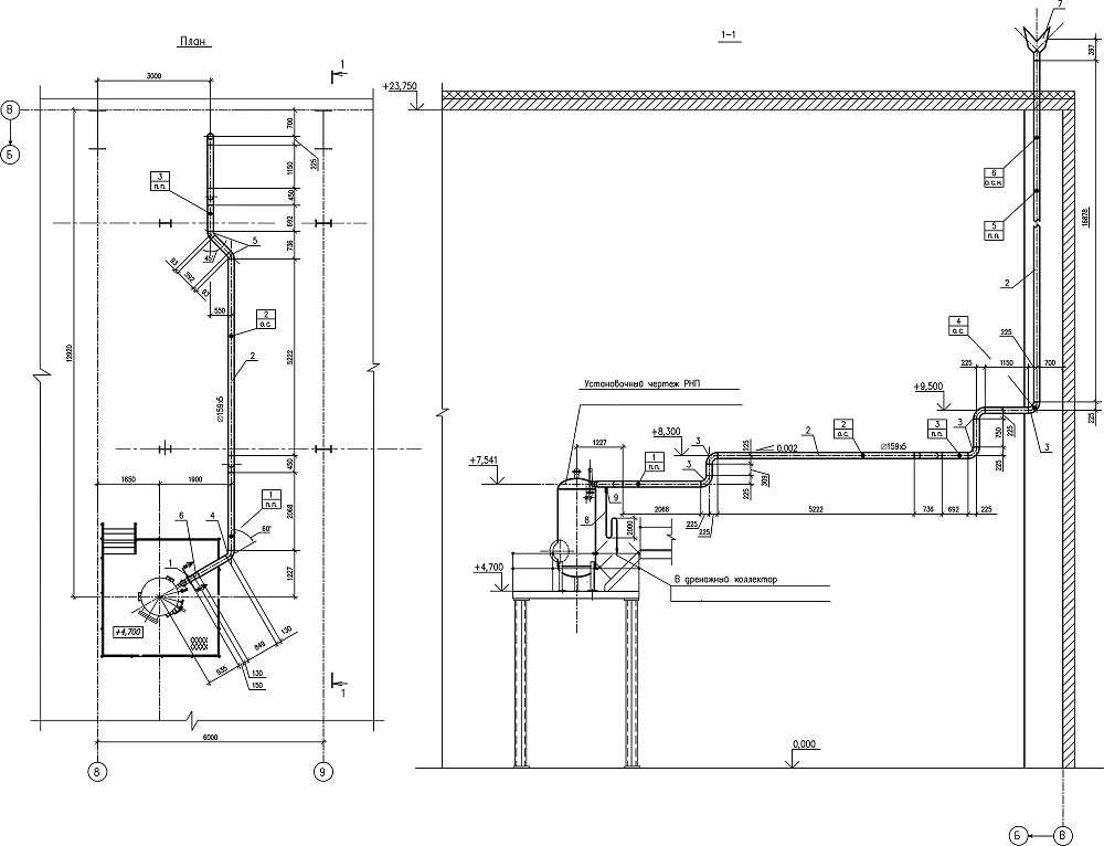
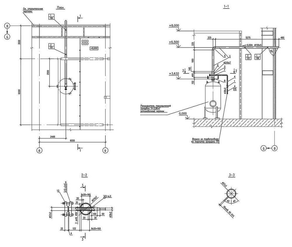
Схемы продувки котла

На рисунке представлена схема проведения непрерывной и периодической продувок парогазовой установки мощностью 450 кВт. Насыщенный пар из расширителя непрерывной продувки направляется в сепаратор пониженного давления. Паропровод снабжён запорными вентилями и обратным клапаном.
Дренаж из РНП поступает в ёмкость чистых стоков. После РНП жидкость поступает в расширитель периодической продувки, а после этого загрязнённая вода сбрасывается в сливной бак из котла.
Чертеж паропровода из сепаратора непрерывной продувки к деаэратору

На данном проектном чертеже отображена конструкция паропровода низкого давления из РНП в атмосферный деаэратор. Паропровод снабжён запорной арматурой и обратным клапаном во избежание попадания пара в расширитель.
Чертеж выхлопа от предохранительного клапана РНП

На данном чертеже отображён трубопровод выхлопа от предохранительного клапана расширителя непрерывной продувки. Он проходит к главному корпусу и затем направляется на крышу (не выше 2 м) для обеспечения безопасности сотрудникам. На трубопроводе выхлопа устанавливается гидравлический затвор для отведения дренажа.
Чертеж выпара из расширителя периодической продувки

На рисунке представлен выпар из РПП. Его выводят на пределы помещения. В отличие от выхлопа, выпар отводится постоянно. Выпар необходимо охлаждать, для чего используют устройство подачи холодной воды в трубопровод (охладитель выпара).
Испарительные поверхности котла
Ранее отмечалось, что основными элементами котла являются: испарительные поверхности нагрева (экранные трубы и котельный пучок); пароперегреватель с регулятором перегрева пара; водяной экономайзер, воздухоподогреватель и тягодутьевые устройства.
Парогенерирующие (испарительные) поверхности нагрева отличаются друг от друга в котлах различных систем, но, как правило, располагаются в основном в топочной камере и воспринимают теплоту излучением — радиацией. Это экранные трубы, а также устанавливаемый на выходе из топки небольших котлов конвективный (котельный) пучок (рис. 7.15).
Рис. 7.15. Схема расположения испарительных поверхностей барабанного котельного агрегата:
- 1 — контур обмуровки топки; 2, 3,4— панели бокового экрана; 5 — фронтовой экран; 6 — коллекторы экранов и конвективного пучка; 7 — барабан;
- 8— фестон; 9 — конвективный пучок; 10— задний экран
Экраны котлов с естественной циркуляцией, работающих под разрежением в топке, выполняются из гладких труб (гладкотрубные экраны) с внутренним диаметром 40—60 мм. Экраны представляют собой ряд параллельно включенных вертикальных подъемных труб, соединенных между собой коллекторами (см. рис. 7.15). Зазор между трубами обычно составляет 4—6 мм. Некоторые экранные трубы введены непосредственно в барабан и не имеют верхних коллекторов. Каждая панель экранов вместе с опускными трубами, вынесенными за пределы обмуровки топки, образует независимый контур циркуляции.
Трубы заднего экрана в месте выхода продуктов сгорания из топки разводятся в 2—3 ряда. Такая разрядка труб называется фестониро- ванием. Она позволяет увеличить сечение для прохода газов, снизить их скорость и предотвращает забивание зазоров между трубами затвердевшими при охлаждении расплавленными частицами золы, выносимыми газами из топки.
В парогенераторах большой мощности, кроме настенных, устанавливаются дополнительные экраны, делящие топку на отдельные отсеки (рис. 7.16). Эти экраны освещаются факелами с двух сторон и называются двухсветными. Они воспринимают вдвое больше теплоты, чем настенные. Двухсветные экраны, увеличивая общее те- пловосприятие в топке, позволяют уменьшить ее размеры.
Рис. 7.16. Размещение экранов в поперечном сечении топки:
- 1 — фронтовой экран; 2 — боковые экраны; 3 — задний экран;
- 4 — двухсветный экран; 5 — горелки; 6 — контур обмуровки топки
Виды продувки
Как было сказано выше различают два типа очистки: периодическая и непрерывная. Первая предназначена для избавления от шламовых примесей, а вторая для обеспечения необходимого минимального уровня содержания солей в котловой воде. Частота периодической и объём непрерывной продувок определяется специалистами по техническому обслуживанию.
Периодическая продувка
Этот вид выполняется двумя сотрудниками при уровне воды в барабане больше среднего. При этом один непосредственно осуществляет промыв, а второй контролирует уровень воды.
Периодическое промывание осуществляется в несколько этапов:
Убеждаются в исправности линии.Участок трубы между котлом и вентилем промыва должен быть горячим, а за вентилем – холодным.
Убеждаются в работоспособности запорной арматуры и измерительных приборов.
Плавно открывается второй вентиль.
После этого открывается осторожно первый от котла вентиль во избежание гидроудара.
Период времени открытия первого вентиля не должен быть больше, чем 30 сек. Далее закрывается второй за ним вентиль.. После завершения процесса следует убедиться в закрытии всех вентилей и линия герметична
Время начала и окончания процедуры отображается в журнале смены.
При периодическом промыве производится отвод воды с примесями из нижней части котла. Помимо этого промывание помогает уменьшить уровень содержания солей в котловой воде. Качество процедуры определяется прибором по измерению давления в линии
После завершения процесса следует убедиться в закрытии всех вентилей и линия герметична. Время начала и окончания процедуры отображается в журнале смены.
При периодическом промыве производится отвод воды с примесями из нижней части котла. Помимо этого промывание помогает уменьшить уровень содержания солей в котловой воде. Качество процедуры определяется прибором по измерению давления в линии.
Непрерывная продувка котла
Непрерывная продувка выполняется через открытый на постоянной основе вентиль, который располагается на линии промыва, из верхней части котла. Вокруг барабана укладывается труба с отверстиями для равномерного поступления воды.
Это необходимо для избавления от солесодержащей воды, которая замещается таким же объёмом более чистой подпиточной водой. Как правило, объём промывания составляет до 3% воды. Этого достаточно для поддержания необходимого уровня содержания солей в воде.
Специалист по химическому анализу определяет количество солей в воде, и в зависимости от этого устанавливается процент отвода воды. Вода из котла поступает в сепаратор, где происходит разделение пара и воды, пар поступает в деаэратор, а загрязнённая вода после охлаждающего расширителя в канализацию.
Обслуживание
Ремонт и обслуживание паровых котельных выполняется в соответствии с законодательными нормами и рекомендациями заводов-изготовителей промышленных паровых котлов, строго по отраслевым и производственным инструкцияма, а также согласно правилам устройства и безопасной эксплуатации паровых и водогрейных котлов.
Техобслуживание ПК в общем случае включает следующие виды работ:
- Плановые осмотры работоспособности котельного оборудования, по графику.
- Определение нарушений работы котла: перегревы, возгорания, засорения.
- Устранение нарушений правил пожарной безопасностм и условий препятствующих безопасной эксплуатации.
- Проверка целостности парогазовых систем с последующим устранением неисправностей в арматуре.
- Проверка питательной системы котлоагрегата.
- Проверка плотности газовоздушного тракта и отсутствие несистемных шумов в топке.
- Профосмотр и проверка вспомогательного оборудования.
- Проверка работы КИП и А, дифманометров, систем безопасности и аварийной сигнализации.
- Контроль за работой насосов, дымососов, вентиляторов и проверка их блоков управления.
- Проверка работы электрооборудования и автоматики защиты.
- Проверка работы гарнитуры котла.
- Проверка работы водоподготовительных устройств и деаэратора паровой котельной.
Российский рынок имеет достаточно предложений, как от отечественных, так и от зарубежных производителей современных паровых котлов, выбор определяется техническим заданием на проектирование, чтобы специалисты смогли подобрать оптимальные варианты оборудования.
Принцип естественной циркуляции жидкости
Естественная циркуляция жидкости, обусловленная специфическим устройством барабанного котла, называется замкнутой системой, включающей следующие элементы:
- барабан;
- опускные трубы;
- подъёмные трубы;
- коллекторы.
Рис. 4 Естественная циркуляция
Рабочее тело многократно перемещается по указанным элементам, благодаря чему эта схема получила название естественного циркуляционного контура. Динамика среды обеспечивается разницей, возникающей между массой столба жидкости, находящегося в опускных трубах и смеси пара с водой, циркулирующей в подъёмных трубах. Именно этот процесс и считается естественной циркуляцией.
Циркуляционные контуры характеризуются возникновением перепада давления. Указанное явление носит название динамичного напора циркуляции, зависящего от разности плотности жидкости и смеси воды с паром, высоты контура. Циркуляционный контур позволяет преодолеть сопротивление, препятствующее продвижению потоков по трубам. Величина давления в паровых барабанных котлах, работающих по принципу естественной циркуляции, не превышает 0.1Мпа.
Благодаря такому устройству циркуляционные контуры, имеют следующие особенности:
- развитие больших скоростей просто невозможно;
- смесь воды и пара, движущаяся с низкими скоростями, подвергается расслоению;
- избежать расслоения, можно расположив обогреваемые трубы в вертикальном положении.
Благодаря этому будет, достигнут истинный принцип естественной циркуляции.
Принцип работы котла-утилизатора
Все газотрубные устройства можно разделить на два типа: те, которые располагаются вертикально, и те, которые – горизонтально. Агрегаты аще всего устанавливают поблизости от обжиговых, мартеновских и других видов печей. Нельзя сказать, что газотрубное оборудование представляет собой слишком мощные агрегаты.
В области газохода располагаются настенные элементы (ленты и экраны) и пароперегревательный конвективный пакет. Тепло превращает воду в пар. Вода и пар циркулируют по поверхностям стенок котла. Чтобы поддерживать стабильный тепловой потенциал, перед утилизатором устанавливают предпоток, оснащенный газовой горелкой.
Как работают трубные утилизаторы:
- В основе работы лежит принцип многоразовой принудительной циркуляции. Именно поэтому вид испарительного элемента может быть любой необходимой конфигурации. Испарительный элемент разделяют на секции, подключенные параллельно: это уменьшает сопротивление области испарения и приводит в действие циркуляционные насосы.
- Вода поступает в котел и проходит экономайзер, перенаправляясь в барабан агрегата отопления. Из него жидкость выкачивает насос, затем она перенаправляется в пакеты испарения.
- В барабане происходит разделение паровых смесей и воды. Это приводит к тому, что из пара в агрегате выделяется вода.
Через паронагреватель пар переходит в систему отопления. Сам котел утилизатора может иметь П-образную, горизонтальную или башенную форму. На выбор конструкции влияет место, в котором будет установлен котел.
38 Почему схема ступенчатого испарения с выносным циклоном лучше, чем при установке перегородки внутри барабана.
Ступенчатое
испарение заключается в том, что в водном
объеме барабана котла создаются зоны
с различным содержанием солей в котловой
воде. Это достигается разделением
водяного объема барабана котла с его
поверхностями нагрева на отдельные
отсеки. Непрерывная продувка производится
из отсека с наиболее высоким солесодержанием,
а отбор пара с наименьшим. Верхний
барабан разделен перегородкой с
отверстием (переливной трубой) на два
отсека – чистый и солевой. Питательная
вода поступает в чистый отсек, а солевой
питается из чистого отсека через
переливную трубу. В чистом отсеке
образуется примерно 80% пара, в солевом
20%. Следовательно, из чистого в солевой
отсек поступает 20% котловой воды, которая
для чистого отсека является продувочной.
Поэтому продувка чистого отсека
происходит без тепловых потерь,
обеспечивая низкое солесодержание
котловой воды в нем.
Существенным
недостатком является возможность
обратного перетока воды в чистый отсек
при «вялой» циркуляции. Для устранения
этого недостатка применяют ступенчатое
испарение с выносными циклонами, которые
являются солевыми отсеками (ДКВР-20). При
использовании выносных циклонов в
качестве сепарационного объема разность
уровней в отсеках может быть выбрана
достаточной по условиям предотвращения
обратного перетока воды. Поэтому схемы
с выносными циклонами предпочтительны,
особенно при небольшой производительности
солевого отсека.
Питательная
вода поступает в барабан, который служит
чистым отсеком. Продувочная вода из
барабана поступает в циклоны, для которых
эта вода является питательной. Циклон
имеет отдельный контур циркуляции и
выдает пар в барабан котла. Пар проходит
через сепарационное устройство чистого
отсека и дополнительно очищается.
Непрерывная продувка осуществляется
только из циклона, если он есть. При
ступенчатом испарении уменьшаются
потери тепла с продувкой и повышается
качество пара
Эффективность
ступенчатого испарения возрастает с
увеличением числа ступеней испарения,
однако это нарастание с ростом числа
ступеней затухает. Наибольшее
распространение получили двух- и
трехступенчатые схемы. При этом вторая
ступень испарения может быть организована
либо внутри барабана, либо вне его — в
выносных циклонах. В трехступенчатой
схеме обычно первую и вторую ступени
выполняют в барабане, а третью — в
выносном циклоне.
Ступенчатое
испарение позволяет повысить чистоту
пара при заданном качестве питательной
воды и данном значении продувки. Оно
позволяет также получить удовлетворительную
чистоту пара при воде более низкого
качества, что упрощает и удешевляет
водоподготовку. Ступенчатое испарение
позволяет также повысить экономичность
паротурбинной установки вследствие
уменьшения продувки без заметного
снижения качества пара.
Схемы и чертежи продувки котла
Схема продувки котла

схема продувки котла
Это часть из реальной развернутой схемы парогазовой установки 450 МВт. На схеме показано, как осуществляется непрерывная и периодическая продувка.
Непрерывная продувка из барабана высокого давления поступает в сепаратор/раширитель непрерывной продувки. На линии по ходу среды устанавливается: запорная ручная арматура, расходомер, электрофицированый регулятор, набор дроссельных шайб, электрофицированная арматура и набор дроссельных шайб.
В конце статьи приведен пример расчета расширителя непрерывной продувки.
РНП оборудован предохранительным клапаном.
В данной схеме, насыщенный пар из сепаратора непрерывной продувки отправляется в барабан низкого давления. На паропроводе устанавливается запорная ручная арматура и обратный клапан. Дренаж из РНП будет отправляется в бак чистых стоков.
Продувка из РНП отправляется в расширитель периодической продувки, на линии устанавливаются электрический регулирующий клапан и запорная ручная арматура. Далее дренаж из РПП сбрасывается в бак слива из котлов.
Чертеж паропровода из сепаратора непрерывной продувки к деаэратору

пар от РНП к деаэратору
На конструкторском монтажно-сборочном чертеже показана компоновка паропровода низкого давления из расширителя непрерывной продувки в атмосферный деаэратор. На паропроводе установлены две арматуры, одна – запорная (позиция 2) и другая – обратный клапан (позиция 1), чтобы пар не смог пойти обратно в расширитель.
Чертеж выхлопа от предохранительного клапана РНП

продувка от предохранительного клапана РНП
На другом чертеже показан выхлопной трубопровода от предохранительного клапана РНП. Трубопровод от предохранительного клапана направляется к краю главного корпуса и в створе колонн уводится на крышу, на высоту более 2х метров, чтобы обеспечить безопасность персоналу станции. На выхлопном трубопроводе предусматривается гидрозатвор, для удаления дренажа в дренажный коллектор. Из опыта эксплуатации диаметр трубы гидрозатвора рекомендуется делать больше, чем обычного дренажа, для препятствия его засорения, так как в выхлопной трубопровод из атмосферы могут попадать листья и другая грязь.
Чертеж выпара из расширителя периодической продувки

выпар из расширителя периодической продувки
На чертеже показан выпар из расширителя периодической продувки. Он также выводится за пределы здания но сбоку. Выпар в отличие от выхлопа носит постоянный характер. Для охлаждения выпара, предусмотрено специальное устройство впыска холодной воды в трубопровод.
Рекомендуемые файлы
Техническое задание
Инженерия требований и спецификация программного обеспечения
FREE
Маран Программная инженерия
Программаня инженерия
FREE
Голицынский. Грамматика. Сборник упражнений. (7-е издание) (2011)
Английский язык
FREE
Сопромат “Построение эпюр внутренних силовых факторов», задачи 1,3,4,5,6,9,11
Сопротивление материалов
FREE
65 102 115 263 363 183 378 476 580 612 795 938 999 1066 1114 175
Химия
Курсовой проект 114 А Проектирование и исследование механизмов поворота хобота и схвата манипулятора
Теория механизмов машин (ТММ)
В прямоточных котлах примеси питательной воды переходят в пар или образуют внутритрубные отложения, что отрицательно сказывается на работе котла. Качество питательной воды прямоточных котлов должно быть высокое (таб.12.2). Добавочная вода проходит химическое обессоливание. В блоках СКД организуется 100%-ная конденсатоочистка в БОУ для удаления механических примесей (нерастворенных продуктов коррозии конструкционных материалов), коллоидно-дисперсных и растворенных веществ, попадающих в конденсат за счет присосов в конденсаторе.
Ограничение образования отложений в барабанном котле происходит за счет снижения Ск.в (продувка, ступенчатое испарение), а в прямоточном котле докритического давления может быть выделена переходная зона для отложения в ней большинства примесей. Во всех случаях устанавливаются предельные концентрации примесей в питательной воде и проводится коррекция химического состава воды для уменьшения количества отложений и увеличения их теплопроводности.
Полностью избежать отложений в поверхностях котла не удается, поэтому для их удаления проводятся периодически химические промывки котла или его отдельных поверхностей.
Снижение интенсивности коррозионных процессов обеспечивается путем ввода в конденсат и питательную воду реагентов, влияющих на скорость коррозии, создающих на поверхности металла защитные пленки с высокой теплопроводностью.
В барабанных котлах нормирование жесткости питательной воды (соединений Са и Mg) вызвано тем, что соли жесткости приводят к образованию на стенках труб отложений, большого количества шлама в объеме воды и малотеплопроводных отложений, которые могут прикипать к поверхности труб. Ограничение концентрации угольной кислоты и кислорода определяется их влиянием на коррозию пароводяного тракта.
Для связывания кислорода, присутствующего в питательной воде за счет присосов в вакуумной части конденсатного тракта и неполностью удаленного при деаэрации, производится обработка турбинного конденсата гидразином N2H4. Поддержание гидразина в пределах 20…60 мкг/кг перед котлом обеспечивает подавление кислородной коррозии.
Связывание остаточных после деаэратора концентраций углекислоты производится аммиачной обработкой питательной воды. Аммиак NH3 нейтрализует угольную кислоту и повышает рН до значений слабощелочной среды.
Чрезмерное количество аммиака (свыше 1000 мкг/кг) приводит к аммиачной коррозии латунных трубок конденсатора и ПНД.
Примеси железа и меди образуют малотеплопроводные отложения на теплонапряженных поверхностях нагрева, приводящие к пережогу труб. С ростом давления в котле интенсивность образования железооксидных отложений увеличивается (уменьшается растворимость, увеличиваются тепловые потоки).
Содержание масел в питательной воде ограничивается в связи с резким увеличением термического сопротивления экранных труб при образовании маслянистой пленки на поверхности металла.
В прямоточных котлах СКД качество питательной воды должно быть равным или близким к качеству пара.
Растворимость соединений меди, натрия и кремнекислоты в водном теплоносителе СКД достаточно велика, и эти соединения проходят котел транзитом. Допустимые концентрации Сu, Na и SiO2 в питательной воде вызваны надежной работой турбины.
Снижение допустимых концентраций соединений железа и солей жесткости в питательной воде направлено на уменьшение скорости роста малотеплопроводных отложений в радиационных поверхностях нагрева, особенно в котлах, сжигающих мазут.
В (таб.12.3) приведены допустимые значения ряда показателей работы блока СКД, определяемые применением водно-химических режимов. Показатели оцениваются при сжигании мазута через 7000 ч, а при сжигании газа и твердых топлив — через 24 000 ч эксплуатации.


















































