Принцип работы традиционных котлов
Работа пиролизного котла не отличается особой сложностью. Но для того чтобы можно было понять все преимущества пиролизной схемы, следует немного поговорить про традиционную схему. Она предусматривает прямое сгорание дров в топке отопительного агрегата. Выделяемое тепло отправляется через теплообменник в систему отопления. Еще дикая часть тепла улетает в дымоходную трубу, отправляясь в атмосферу.
Простота принципа работы традиционного котла позволяет не заморачиваться с усложнением его конструкции. Тут всего два важных узла – это топка тех или иных размеров, а также теплообменник, изготовленный из стали или чугуна. Никаких систем автоматики здесь нет, а регулировка температуры осуществляется путем открытия или закрытия дверцы поддувала. Нужный режим работы контролируется с помощью термометра. В отличие от пиролизных котлов, интенсивность горения регулируется в минимальных пределах.
Давайте посмотрим, в чем заключаются недостатки схемы прямого сгорания древесного топлива:
- Слишком быстрое сгорание, почти неконтролируемое – не позволяет выставить нужный режим работы;
- Нельзя подключить следящую электронику – все операции по регулировке интенсивности горения придется проделывать самостоятельно, с помощью заслонки;
- Пониженный КПД – принцип работы классических котлов, в отличие от пиролизных, подразумевает удаление большого количества тепла в атмосферу. Одновременно с этим отмечается пониженная теплотворная способность дров при их естественном горении;
- Нужно постоянно подбрасывать все новые порции дров – особенно если агрегат не оснащен большой топочной камерой.
Но есть и неоспоримые преимущества:
Разнообразие возможных видов топлива для твердотопливных пиролизных котлов поражает воображение: дрова, брикеты, опилки, измельченные ветки, пеллеты, кокс, уголь, торф.
- Энергонезависимость – в отличие от пиролизных котлов, принцип действия традиционных агрегатов не предусматривает подключения к электросети;
- Предельная простота конструкции – единственное, что может тут сломаться, это теплообменник. Но поломки можно избежать, если выбрать котел с теплообменником из чугуна;
- Нетребовательность к дровам – если в топке уже горит порция древесины, в нее можно докинуть даже полусырые поленья. Не имеет особого значения и сорт древесины;
- Доступная стоимость – пиролизные котлы, о принципе работы которых мы будем рассказывать в данном обзоре, стоят существенно дороже.
Таким образом, даже у самого несовершенного оборудования можно отыскать те или иные недостатки.
Традиционные котлы, в отличие от большинства пиролизных, оптимальны для обогрева загородных домов, не подключенных к электрическим сетям.
Принципы работы
В котле на твёрдом топливе одной закладки может хватить на семь часов горения. Если вовремя не подкинуть дрова, то температура в комнате начнёт быстро снижаться. Это происходит из-за принципа свободного движения газа: горячие потоки воздуха поднимаются и затем выходят наружу. Устройство длительного горения может поддерживать тепло в помещении один-два дня, самые дорогие модели выдерживают до семи суток.
По чертежам твердотопливного котла своими руками можно понять то, что эффективность его работы заключается в правильном строении. В обычном агрегате внизу располагается топливо, пламя от него поднимается к распределителям воздуха. Затем горячий кислород попадает в камеру подогрева, из которой выходит по трубам к радиаторам отопления. Вентилятор обеспечивает своевременную подачу воздуха к пламени.
В этом видео вы узнаете, как сделать котел отопления своими руками:
В твердотопливном котле находятся сразу две камеры сгорания, а сама топка расположена в верхней части. В неё закладывают дрова или уголь, а воздух поступает с помощью специальных вентиляторов. Когда прогорает верхний слой топлива, подаются новые потоки кислорода. Это позволяет дровам гореть очень медленно, отдавая большее количество тепла помещению.
Это интересно: дрова для камина какие лучше.
Приобрести можно несколько моделей такого оборудования. К бюджетным агрегатам относятся дровяные котлы — в них нельзя закладывать ничего, кроме поленьев. Остальные устройства топят углем, опилками, бытовым мусором, брикетами.
На инженерных чертежах твердотопливные котлы своими руками изображают с месторасположением основных элементов:
- дверца топки находится сверху;
- в этой же части дымовой патрубок соединяется с дымоходом;
- внизу встраивают зольник, через который очищают котёл;
- с помощью заслонки в верхнюю часть воздушной камеры поступает кислород.
Читать подробнее: дымоход своими руками.
1 Описание оборудования
Пиролизные котлы представляют собой одну из разновидностей классических твердотопливных установок. В обычных дровяных теплогенераторах, имеющих водяное отопление, древесина и другое топливо быстро сгорает, поэтому одной загрузки будет хватать на 3−5 часов обогрева. Это существенно усложняет эксплуатацию отопителей, которые, по сути, не могут работать в автономном режиме. Для решения проблемы были сконструированы котлы пиролизного типа, отличающиеся максимально длительным временем функционирования на одной загрузке топлива.
Такие установки универсальны в использовании, что позволяет им работать на прессованных отходах деревообработки, дровах, угле и другом твердом топливе. Действие котла основывается на так называемом принципе пиролиза. При нагреве и тлении древесины с минимальным доступом кислорода из топлива выделяется газ, который хорошо горит, что существенно повышает эффективность отопительной установки.
Преимущества оборудования:
- Отличная топливная экономичность.
- Высокая эффективность.
- Универсальность использования.
- Надежность и долговечность.
- Полная безопасность.
- Простота эксплуатации.
- Возможность выполнить своими руками пиролизный котел на угле.
У пиролизных устройств имеется сразу несколько камер, где топливо тлеет, а выделившийся газ дожигается при помощи специальных горелок. Необходимо лишь поддерживать тление, чтобы существенно продлить время работы котла на одной загрузке. Встроенная в отопитель автоматика увеличивает или уменьшает поступление количества воздуха в камеру сгорания, что позволяет управлять работой агрегата, обеспечивая необходимую эффективность.

Современные отопительные установки полностью управляются автоматикой, имеют компактные габариты, отличаются увеличенным КПД и способны в зависимости от конкретного вида используемого топлива проработать на одной закладке до 5 суток. Пиролизные котлы, в отличие от твердотопливных установок, отличаются безопасностью в эксплуатации, а последующий уход и обслуживание оборудования не представляет какой-либо особой сложности.
Как сделать пиролизный котёл своими руками
Технологический процесс изготовления котла пиролизного принципа действия включает выполнение слесарных и сварочных работ.
Необходимые материалы и инструмент
Для изготовления качественного агрегата необходим опыт в работе со следующими инструментами:
- аппарат электросварочный;
- дрель электрическая;
- угловая шлифмашина;
- набор слесарных инструментов — угольник, уровень.
Потребуются материалы и комплектующие:
- металл:
- листовой, толщина 4 мм, 7,5 м²;
- труба — 8 м (диаметр 57 мм, толщина стенки 3,5 мм);
- полоса сталь (толщина 4 мм, ширина 20 мм) — 7,5 мп;
- полоса сталь (толщина 4 мм, ширина 30 мм) — 1,5 мп;
- полоса сталь (толщина 5 мм, ширина 80 мм) — 1 мп;
- шамотный (огнеупорный) кирпич — 15 шт;
- профтруба 60×30 (толщина стенки 2 мм) — 1,5 мп;
- профтруба 80×40 (толщина стенки 2 мм) — 1 мп;
- круг отрезной d 230 — 10 шт.;
- круг шлифовальный d 125 — 5 шт.;
- электроды — 5 пачек;
- датчик температуры.

Температурный датчик — это механическое устройство контроля количества воздуха, проходящего в камеру сгорания.
Продуктивность работы котла зависит от функционирования дымоотводящей трубы. Для обеспечения хорошей тяги дымоотвод должен соответствовать требованиям качества:
- высота не меньше 5 метров;
- хорошее утепление;
- отсутствие резких изгибов;
- отвод конденсата;
- простой доступ для чистки.
Чертежи и схемы устройства
Пиролизный котёл без принудительной вентиляции имеет наиболее простую схему. Энергонезависимость конструкции удешевляет эксплуатацию агрегата.
Схема пиролизного котла с естественным дымоотводом имеет вид:

Котёл состоит из трёх основных камер:
- загрузочная, служащая для заброса топлива;
- камера дожига, куда подаётся вторичный воздух;
- теплообменник, выходящий в трубу.
Горение сырья направляет поток газа сверху вниз. При подаче воздуха под колосники в массив шамотного кирпича происходит дожиг горючих газов. Продукты распада уходят через теплообменник в дымоотвод. Регулировка тяги выполняется термодатчиком на выходе из котла с помощью цепочки, связанной с заслонкой подачи вторичного воздуха.
Подробную деталировку с размерами и допусками можно взять в стандартном чертеже:
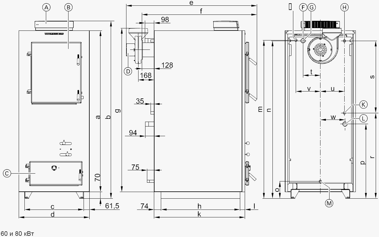
A — контроллер контура котла; B — дверца загрузки; C — крышка зольника; D — дымоотвод; E — муфта для датчика температурного предохранителя; F — патрубок предохранительного клапана; G — подающая магистраль контура; H — подвод холодной воды в теплообменник; L — обратная магистраль контура котла; M — расширительный бак
Пошаговая инструкция изготовления агрегата
Изготовления пиролизного котла своими руками разделяется на этапы:
- Согласно чертежу выполняется разметка и нарезка деталей для корпуса. После «прихватывания» элементов производится контрольный замер, затем делаются сварочные швы. Установленные на свои места задняя панель и боковые стенки свариваются с двух сторон, зачищаются, обрабатываются сварочным герметиком.
- Производится монтаж труб теплообменника.
- После наваривания внешней стенки и обечаек дверок устанавливается механический регулятор контроля теплоносителя.
- Дымоход собирается наращиванием трубы Последующую часть нужно вставлять внутрь предыдущей, чтобы конденсат не попадал на внешнюю сторону. Готовая конструкция окрашивается огнеупорной краской.
Принцип работы пиролизных котлов и их особенности
Создавая пиролизные котлы своими руками, люди стремятся сэкономить денежные средства в своем кошельке. Если газовое оборудование стоит довольно дешево, то твердотопливные агрегаты просто поражают своей ценой. Более-менее приличная модель мощностью 10 кВт обойдется в 50-60 тысяч рублей – дешевле провести газ, если рядом проходила бы газовая магистрально. Но если ее нет, то выходов два – приобретать заводское оборудование или делать его самостоятельно.
Изготовить пиролизный котел длительного горения своими руками можно, но сложно. Давайте для начала разберемся, для чего вообще нужен пиролиз. В обычных котлах и печах дрова сгорают традиционным способом – при высокой температуре, с выбросом продуктов сгорания в атмосферу. Температура в камере сгорания составляет порядка +800-1100 градусов, а в дымоходе – до +150-200 градусов. Таким образом, солидная часть тепла просто улетает наружу.
Прямое сгорание дров применяется во многих отопительных агрегатах:

Твердотопливные пиролизные котлы могут использовать несколько видов топлива, в том числе отходы деревообрабатывающего производства и сельскохозяйственной переработки.
- Твердотопливные котлы;
- Печи-камины;
- Камины с водяными контурами.
Главным преимуществом данной методики является то, что она отличается простотой – достаточно создать камеру сгорания и организовать отвод продуктов сгорания за пределы оборудования. Единственным регулятором здесь становится дверка поддувала – регулируя просвет, мы можем отрегулировать интенсивность горения, тем самым воздействуя на температуру.
В пиролизном котле, собранном своими руками или купленном в магазине, процесс сгорания топлива идет несколько по-другому. Дрова здесь сгорают при низкой температуре. Можно сказать, что это даже не горение, а медленное тление. Древесина при этом превращается в подобие кокса, одновременно выделяя горючие пиролизные газы. Эти газы отправляются в камеру дожигания, где сгорают с выделением большого количества тепла.
Если вам кажется, что данная реакция не даст особого эффекта, то вы глубоко заблуждаетесь – если заглянуть в камеру дожигания, то здесь будет видно ревущее пламя ярко-желтого, почти белого, цвета. Температура сгорания – чуть выше +1000 градусов, а тепла в этом процессе выделяется больше, чем при стандартном горении древесины.
Для того собранный своими руками пиролизный котел смог показать максимальную эффективность, необходимы дрова с низким содержанием влаги. Влажная древесина не даст оборудованию выйти на полную мощность.
Реакция пиролиза знакома нам еще со школьного курса физики. В учебнике (а может и в лабораторном кабинете) многие из нас видели интересную реакцию – древесина помещалась в стеклянную запечатанную колбу с трубкой, после чего колба нагревалась над горелкой. Через несколько минут древесина начинала темнеть, а из трубки начинали выходить продукты пиролиза – это горючие газы, которые можно было поджечь и понаблюдать за желто-оранжевым пламенем.
Аналогичным образом работает и пиролизный котел, собранный своими руками:

На одной загрузке топлива пиролизные котлы работают около 4-6 часов. Так что большим и стабильно пополняемым запасом дров стоит озаботиться заранее.
- В топке разжигаются дрова до появления устойчивого пламени;
- После этого доступ кислорода перекрывается, пламя гаснет почти полностью;
- Запускается дутьевой вентилятор – в камере дожигания появляется высокотемпературное пламя.
Устройство пиролизного котла довольно простое. Основными элементами здесь являются: камера сгорания, в которой складированы дрова, и камера дожигания, в которой сгорают продукты пиролиза. Передача тепла в отопительную систему осуществляется через теплообменник
В схеме пиролизного котла ему уделяется особое внимание
Все дело в том, что теплообменники в пиролизных котлах, собранных своими руками, устроены не так, как в газовом оборудовании. Продукты сгорания с воздухом проходят здесь через множество металлических труб, омываемых водой. Для увеличения эффективности котловая вода омывает не только сам теплообменник, но и все другие узлы – здесь создается своего рода водяная рубашка, которая отбирает излишки тепла от раскаленных элементов котельного агрегата.
Схема подключения в деталях
Мало купить отопительный аппарат, его необходимо еще и правильно установить, а также подсоединить к системе.
Подключение пиролизного котла может быть выполнено несколькими способами:
- Простым
- С контуром подмеса
- С гидрострелкой
- С аккумулирующей емкостью и контуром ГВС
Вторая схема подключения пиролизного котла, кроме ранее перечисленных узлов, включает в себя также контур подмеса и краны, необходимые для регулировки количество теплоносителя. Она несколько лучше простой и полностью исключает образование конденсата на стенках котла.
Третья чаще всего применяется для систем с несколькими отопительными контурами и содержит гидрострелку. Ее главная роль – это исключение гидравлического воздействия насосов между собой. Но также она способна осуществлять дегазацию отопительной системы.
И последняя – это схема работы пиролизного котла с Laddomat 21. В нее входят аккумулирующий бак и контур горячего водоснабжения идеальную работу которых обеспечивает дополнительный блок. Подбор объема емкости осуществляют по следующим показателям: не менее 25 литров на 1 кВт мощности.
Данная схема, благодаря наличию в ней блока Laddomat 21, способна заместить классическую схему подключения, состоящую из отдельных элементов. Она работает в следующем режиме. Нагрев воды до заданного значения осуществляется за счет регулировки ее поступления из накопительного бака при помощи вентиля терморегулятора. Он увеличивает или уменьшает сечение прохода обратной линии и тем самым влияет на достижение теплоносителем заданных показателей.
Кроме этого наличие в ней аккумулирующей емкости позволяет добиться работы котла в оптимальном режиме. А при внезапном отключении электричества, позволяет поддерживать температуру теплоносителя на заданном уровне в течение двух суток.
Какая схема подключения пиролизного котла, из рассмотренных выше, будет оптимальной, зависит от специфики системы отопления, а отчасти и наличия свободной денежной суммы.
Но в любом случае они должны удовлетворять следующим условиям:
- Отвечать требованиям безопасности
- Обеспечивать хорошую циркуляцию теплоносителя в системе
И не стоит забывать, что чем более качественно укомплектована обвязка котла, тем экономнее он будет в работе и удобнее в эксплуатации и обслуживании.
Толщина блинов
Эта величина находится в обратной пропорциональности к внутреннему диаметру D. Необходимо добиться оптимального нажима поршня на топливную закладку. Если давление будет недостаточным, это приведет к снижению коэффициента обратного действия. Как результат, может случится обратное возгорание топки с дальнейшим выходом дыма через трубу. Если же поршень будет очень тяжелым, это заметно уменьшит необходимую для качественного горения воздушную прослойку: в результате пламя затухнет.
Соотношения между внутренним диаметром и толщиной блинов примерно такие:
- 30 см – 6-10 мм.
- 40 см – 6-8 мм.
- 60 см – 4-6 мм.
- 80 см – 2,5-4 мм.


















































